Private Office 1 - 10’ x 15’
Option A
Expansion Casegoods
-
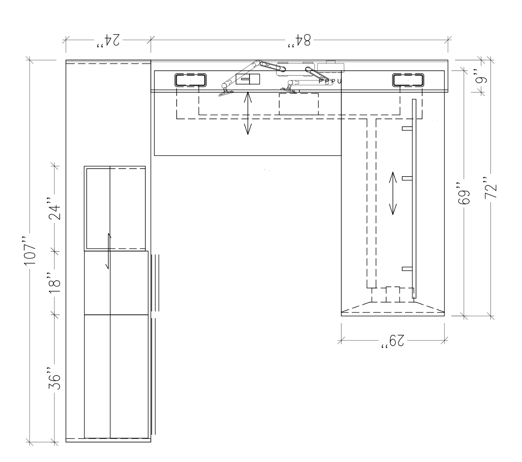
Expansion Height adjustable L shaped desk and return (35 x 72 x 84 x 23) with 10” modesty.
Height adjustable table: 300 lb weight capacity
Wall mounted tackboards 45x72 + 45 x 36
Expansion credenza (108x24) with 36” lateral file, 18” bbf, 24”w bookcase.
Wire mgmt. hammock, power qube, Swerve dual monitor arm
-
Superb standard comprehensive kit of parts create a personal or multiple configurations with a cohesive aesthetic.
State of the art Workwall integrates Height adjustability in storage pieces
Expertly engineered wall panel concept look with minimal piercing of drywall
Flexible work styles available with standard layered worksurfaces
Seamless high end designed Height adjustable full Desk panel.
Easy access to concealed wire management in work wall
Metal to metal connections of all major components support multiple reconfigurations
Original Mockup

