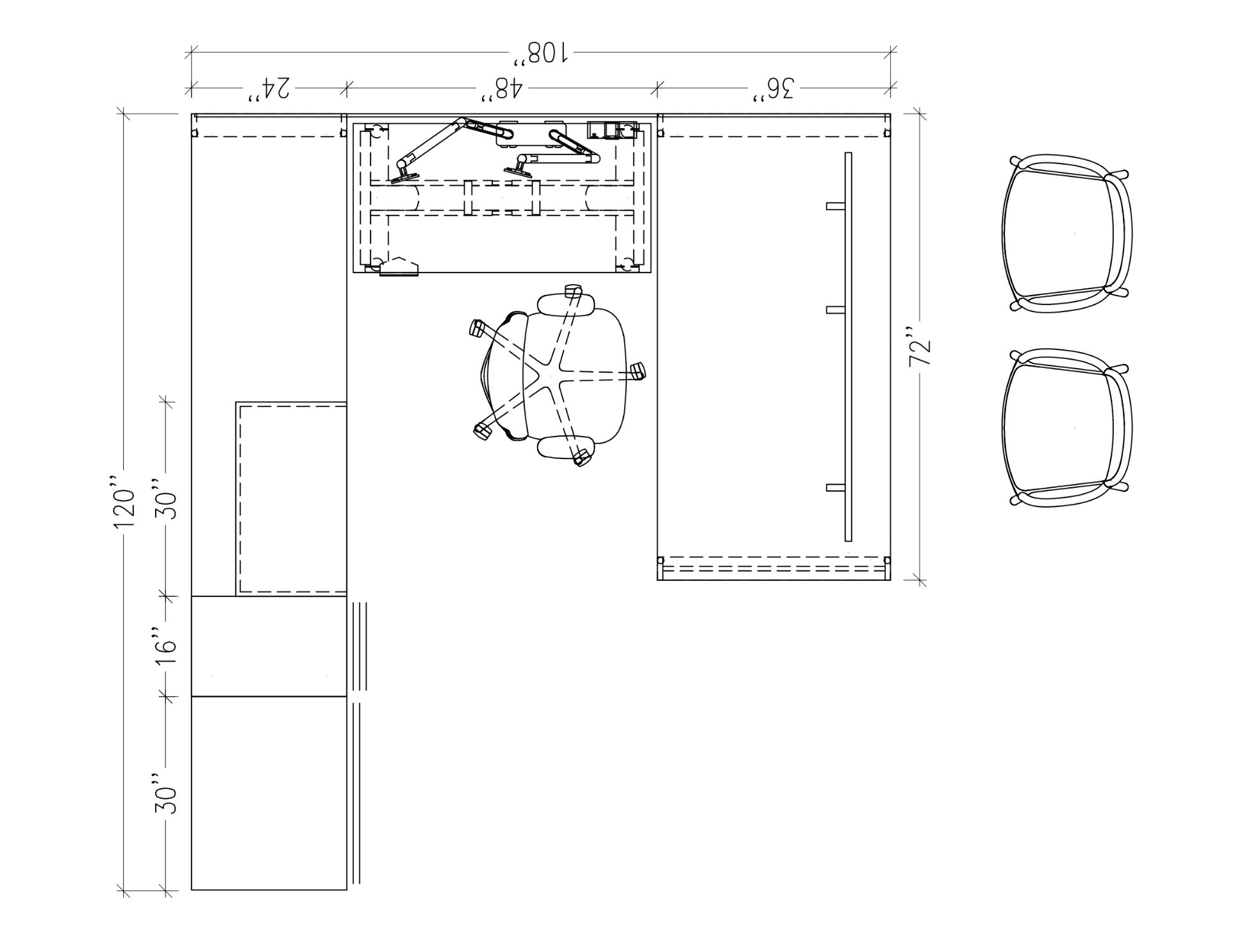
Private Office 1 - 10’ x 15’
Option B
Expansion Casegoods
-
Expansion fixed height desk 72 x 36 with filled end panel on outer edge and 10”h modesty.
Hispace slide 46x23 extended height adjustable height table. 300 lb weight capacity.
120x24 credenza with 36”lateral file, 16”bbf, 30”w bookcase below.
Wall mounted Tackboards 45h x 72w + 45h x 36w. .
Wire mgmt hammock, power qube, Swerve dual monitor arm.
-
Superb standard comprehensive kit of parts create a personal or multiple configurations with a cohesive aesthetic.
State of the art Workwall integrates Height adjustability in storage pieces
Expertly engineered wall panel concept look with minimal piercing of drywall
Flexible work styles available with standard layered worksurfaces
Seamless high end designed Height adjustable full Desk panel.
Easy access to concealed wire management in work wall
Metal to metal connections of all major components support multiple reconfigurations

